金融办公室

发表时间:2019-12-26 16:58

通常来讲,金融公司对空间的私密性非常看重。如何在保有足够私密性的同时兼顾空间的开放与共享,以及空间功能的可变与丰富,是此次百分金融办公室项目设计的重点。我们以“开放性”为题,进行了设计上的探索,通过一个简单有趣的方式,解决以下三个问题:1.空间的开放性与私密性的平衡;2.空间各功能区域的分与合;3.空间基本格调的规整与变化。


▼办公室空间概览


11111111111111111111111111111111111111111111111111.jpg



▼开放的工作区


22222222222222222222222222222222222222.jpg


▼推拉墙体


3333333333333333333333333333333333333333.gif


▼工作区内部空间


44444444444444444444444444444444444444444444444444.jpg555555555555555555555555555555555555.jpg


“流动”的空间|

设置成方盒子形态的前台,既保留了迎客接待的属性,也强化了作为办公工位的安全感和亲切感。从多功能室延伸至水吧台,再至开放空间的前后贯穿的壁柜,打造深远且开放的空间状态。

▼设置成方盒子的前台


▼多功能室


666666666666666666666666666666666.jpg


▼多功能室通过推拉墙的与洽谈区相融或分隔


777777777777777777.jpg88888888888888888888888888.gif


“严谨”与“闲适”

由于金融行业的属性,空间专业感必不可少。因此在洽谈区,在必要的舒适之外,着重呈现的是商务谈判的严谨与端正。作为内部员工与外部客户共同使用的 茶室,也是一个小型会议室。触感温和的木质材料,宜人的小尺度,营造出闲适的温暖与安静。独立办公室,简单的空间让人更易专注于工作。黑白灰的基调以及丰富的收纳空间既是对空间内容的归置,也是对形式上的规整。

▼黑白灰基调的内部空间


9999999999999999999999999999999.jpg101111111111111111111111111111111111111111111111.gif


▼总经理独立办公室


000000000000000000000000000000000.jpg

探索,未知的边界

此次的设计,我们尝试在隐与显、明与暗之间,平衡开放与私密的需求。在空间流动下的“深远不尽”中,赋予未来使用者更多的可能性。

a'a'a'a'a'a'a'a'a'a'a'a'a'a'a'a'a'a'a777777777777777777777777777.jpg

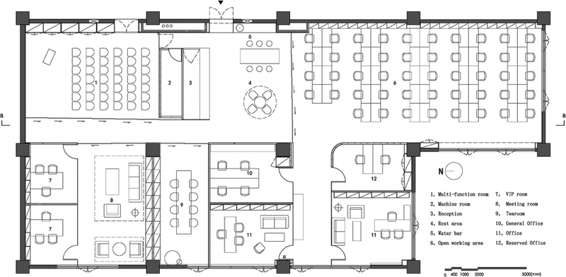
▼平面图

不啵啵啵啵啵啵啵啵啵啵啵啵啵啵啵啵啵啵.jpg

材料:1,丝网印刷玻璃 2,高强面层水泥自流平 3,氟碳喷涂钢板


登录
登录
其他账号登录:
我的资料
留言
回到顶部