概念奶茶店

发表时间:2020-01-02 13:42

▼奶茶店鸟瞰

1.jpg

本案以“虫洞”为概念原型展开设计篇章,同时又打破“虫洞”原有的神秘轨迹,尝试建立时间与空间在建筑内外的对话。


▼奶茶店爆炸轴测图

1.jpg

▼室内斜向长墙的纵深感和玻璃幕墙带来了对立而延续的视觉导向

2.jpg

景致和光线在同一时间轴上呈现不同的画面感:阳光与内景、热情与冷静、开放与紧致、社交与艺术等等双重空间表达。且两个界面并非孤立,通过孔洞式的造型达成空间对话,穿插于其中的灯带及吧台链接内外关系,制造虫洞般的联想。新时沏品牌有着“sometimes”的延伸含义,沏泡的不止是饮品而是放慢的时光。设计团队运用水洗石和乱纹不锈钢制造这一层意境,原创的长桌将日出日落的具象透过渐变玻璃形成幻象。


▼阳光与内景

1.jpg

1.jpg

▼入口处的拱形洞口,穿插于其中的灯带及吧台链接内外关系

1.jpg

1.jpg

▼首层空间局部

1.jpg

▼乱纹不锈钢打造而成的吧台

1.jpg


▼通向二层的楼梯空间

1.jpg

▼二层局部,运用水洗石

1.jpg

虽为室内空间设计,但考虑更多的是内与外、人与景、光与影、过去与现在之间的相互作用相互美好,这一种关联在本案归纳成:互为镜像。


▼室内夜景,从二层向下看

1.jpg


▼傍晚时分的奶茶店

1.jpg


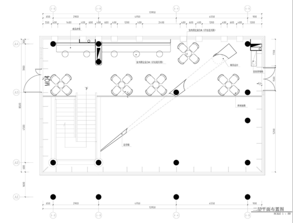
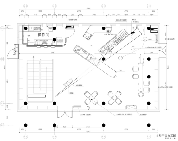
平面图

1577944314(1).png


1577944336(1).png

分享到:
登录
登录
其他账号登录:
我的资料
留言
回到顶部