东莞--原来“亲子教育”从装修设计开始,就正在进行中了...

发表时间:2024-03-09 09:08

图片

图片


Imagine,John Lennon - Imagine



/希望陪着你们一天天长大


载着我们去钓鱼,

带着我们去游泳,

烈日下接我们去上学,

日落归家后仍有爱的陪伴:


一家四口,双胞胎之家。男主人经常出差并不在家,每月在家团聚的日子非常有限,日常由女主人照顾孩子,希望在一家人都在家时,家庭能够提供家庭活动的空间,弥补出差时缺少的一些陪伴。由于隐私问题不多提及,一句话概括:幸福简单的双胞胎之家。




案例





/广电天韵

河南省郑州市

建筑面积:162

四室两厅两卫

设计师:ShinLee

装修花费:47万(不含电器与设计费)


/原户型

图片

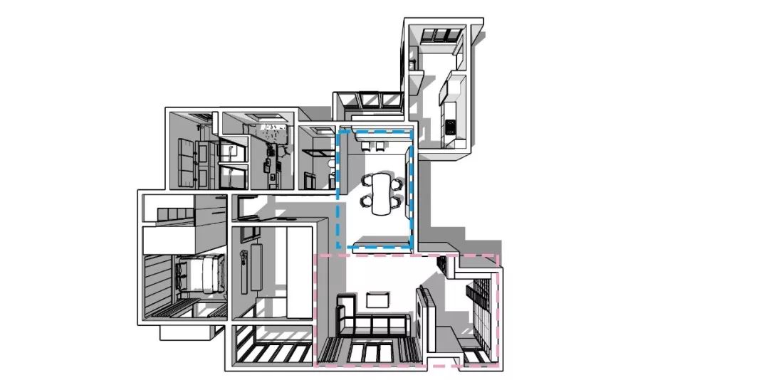
中规中矩的四室户型,开间与进深比例比较搭配,唯一美中不足的是位于客厅东侧的房间,让整体的静区布局显得比较尴尬。


/设计


空间逆转,增加纵深感与开间连贯,强化“家庭一体化”空间结构,基于业主对于“家”的需求,强调了家庭的概念,形成了相互穿插的活动空间:在阅读时需要看的在客厅的孩子,在厨房做饭时,也可以传菜给沏茶的妻子,妻子在岛台洗水果时,也可以注视到在屋中的家人。最终达到:在同一空间中,彼此忙着自己的事情,目光所及是在家中的爱人。


原始空间分析

图片

改造后空间分析


图片


结构上着重改造了两个区域:主卧卫生间与客卧,客餐厅与客卧的布局方式。整体的空间配比的核心,由“刚需”型,调整为“改善”型:加强更多的家庭空间,提供了更多面积的家庭活动功能,是对业主的生活习惯进行了整体的再次规划。


客厅活动区调整


客厅方向的调整,意味着户型整体设计对照的难度提升,为了达成“逆转”后的空间质感,立面的空间关系,与材质的搭配,形成统一的空间氛围是具有相当的难度。


图片

餐客厅,玄关,水吧台的进深空间。客厅与书房的开间空间,两组空间搭配组合,重新构架了一个新的整体空间。

图片

图片


打破了原格局的空间,让新的空间逻辑形成,材质的搭配是比较难做到。改造后的立面关系是整体项目的核心,构成整体的空间材质被分为两个主要色系,三个立面模块。最终达到的目的:开间与进深不会因为功能的“逆转”产生较大的差异,相反空间得到了很好的延伸。


卫生间与客卧

图片

主卧卫生间与客房的调整,卫生间将卫生间增加。就很有必要对于面积进行再次调配。主卧卫生间增加空间之后,调整为四分离,满足生活对于卫生间功能需求:双台盆的设计,为了让母亲教导孩子,形成好的生活习惯。


/呈现


"空间是生活的,也是用来想象的”

材料的选择更加偏向“Imagine”:大范围的立面处理,配合简约的色调,材质,合理的留白,从材质上再次加强了“空间”感,围绕“家庭空间”这个概念进行组合。


餐厅/玄关

图片图片

/甜品,花果茶,玩桌游,做手工,轻料理


整体空间非常完整,立面的对称与结合,你会发现左侧与右侧的材质和色彩,在中心水吧台的位置有结合:地面立起来的白色石材岛台,顶部延伸下来的黑色柜体,都与两侧的立面产生联系,两侧的立面向前延伸,通过两个同色材质的变化汇聚于一点,最终加强了空间的进深感。


大块面的处理手法,属于建筑语言,建筑注重空间与人的关系,通过大的整体来处理立面来达到“仪式感”的质感,这种方式随着房屋面积与平层住宅的市场所应用开来,建筑师的思维方式更适合具有更大面积的平层住宅,适用于营造“仪式感(想象力)”的业主。


厨房

图片


厨房做成无门的开放式,亮点在于“室内窗”。在厨房洗菜池的位置留了一扇窗户,这样的空间处理。在不完全开放的情况下,让厨房与水吧台有一个互动。融入到的客餐厅。


图片


客厅

图片/家庭电影,讲故事,过家家


客厅的空间经过重塑后,整个空间会更有趣,整体包围状的沙发,降低高度的电视,层次感,会让这个空间更随意,坐到地面上,在这个环境中不会有违和感,相反会比较自在。这个空间会让父母与两个姑娘有更多互动:席地而坐的游戏,家庭周末观影,家庭聚会,包围结构让动线更聚集。


延展空间

图片


更大的整体结构块,让立面有充分的空间放置艺术画,来加强空间的氛围。


图片


两种空间状态,移门闭合时可作为独立临时客房,移门开启时候是作为客厅的延伸空间而形成的开放书房,作为独立房间的使用也能满足男主人日常抽个雪茄的需要。


图片

来自ShinLee工装项目(Diagram,分析图),与室内设计师不同,建筑师本身,在设计过程中对于空间的理解相对传统室内更加宏观:通过建筑模块,构架整体空间,形成空间逻辑。


主卧

图片


儿童房

图片


儿童房的设计是从需求与家庭空间关系,进行规划的:日常作息,收纳,学习,活动。基于这四点诉求。改造了更适合儿童的身高落地窗,阳台增加地台,放置懒人沙发,让双胞胎有两人独立的私密活动空间(相对于客厅的全家活动而言,阳台的地台为两人说悄悄话的一个场景,夜晚,大的落地窗与高楼层提供了一个更完整的氛围。)


图片


衣柜下方的空格与收纳袋,基于女儿们的身高定制,原因很简单,提供一个可供自己整理的专属收纳空间(整理归纳的行为习惯是从小培养的),一体化的书桌,为孩子提供了一同学习的场景。


在普通家装中,柜体这一环节的设计是由全屋定制设计师配合家装设计师完成的,会出一些问题,柜体融不到家装空间中去。而独立设计师会从宏观方案深化到细节中去,让独立的柜体融合到整体空间里去。


卫生间

图片图片

/“沐浴露和香香皂今天用哪个好,毛巾浴帽刷牙牙水温刚刚好。”


独立的分离式卫生间:卫生间采取双台盆,兼容双胞胎同时洗漱,方便了使用习惯,在房屋睡眠功能“溢出”的情况下,占用了次卧房间的部分面积,来改造干湿分离。在孩子们的生活中需要浴缸的陪伴。


/期盼

“会永远注视女儿的成长。


家庭的空间与孩子的成长息息相关,让生活与空间“同频”需要思考的。


图片


“逆转”空间,客厅属于反常规的布局方式,通过延伸一间屋子,来调整客厅的空间位置,使客厅的与水吧台的视线相对。来达到“无论我在做什么,家人都在我视线中”的需求。


图片


将空间“逆转”后,客厅与一间卧室形成可拓展的客厅区域,形成的区域与餐厅区相对,同时通过柜体功能的延展,可以临时做成客房。


图片


原始的空间布局调整过后,形成的整体,视野更为通透,又通过立面的完整处理,让感官对于空间的印象再次加深。同时通过电视区域,一个层次的递进融合后,最终让空间具有“建筑”的仪式感。开放的活动空间,对美学的尊重,亲情的家庭关系培养,都是设计应当解答的问题。




/尔本观点


当你开始认知自我,认知家庭,明白自己要的是什么样的生活,最终需要找到最适合你的设计师。像是本案设计师,善于用空间表达“意识”。



东莞市嵘铖建设工程有限公司专业从事商务办公、教育培训、餐饮会所、娱乐健身、医院等项目设计施工,为客户提供设计、施工、家具、弱电一站式服务。施工管理团队平均从业年限10年以上,所有项目工地,均由公司直管经营,采取标准化的施工管理,严把质量关卡,按时按质按量完工且检验,高品质交付给每一位客户,客户满意,我们的追求,我们也随时欢迎参观考察。

      东莞市嵘铖建设工程有限公司

东莞市工装装修设计

图文源自网络



登录
登录
其他账号登录:
我的资料
留言
回到顶部