东莞市工装装修设计 | 东莞市办公室装修设计极致与时尚”的平面分享

发表时间:2025-10-21 15:19

直线象征无限,曲线限制创造。而色彩则可以让人哭泣。”                                                                     

   


图片
图片
图片

当我们在思考办公空间时
到底是在思考什么呢
是一处物理办公场
或是链接人的社交场
亦或是专注与松弛并存的独立区





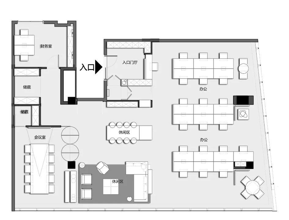
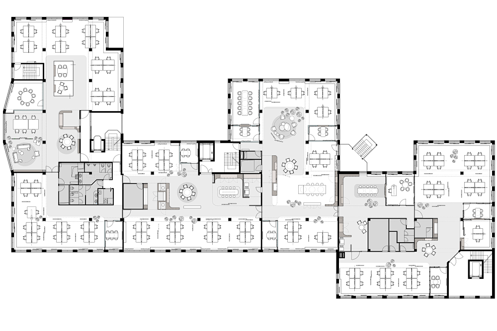
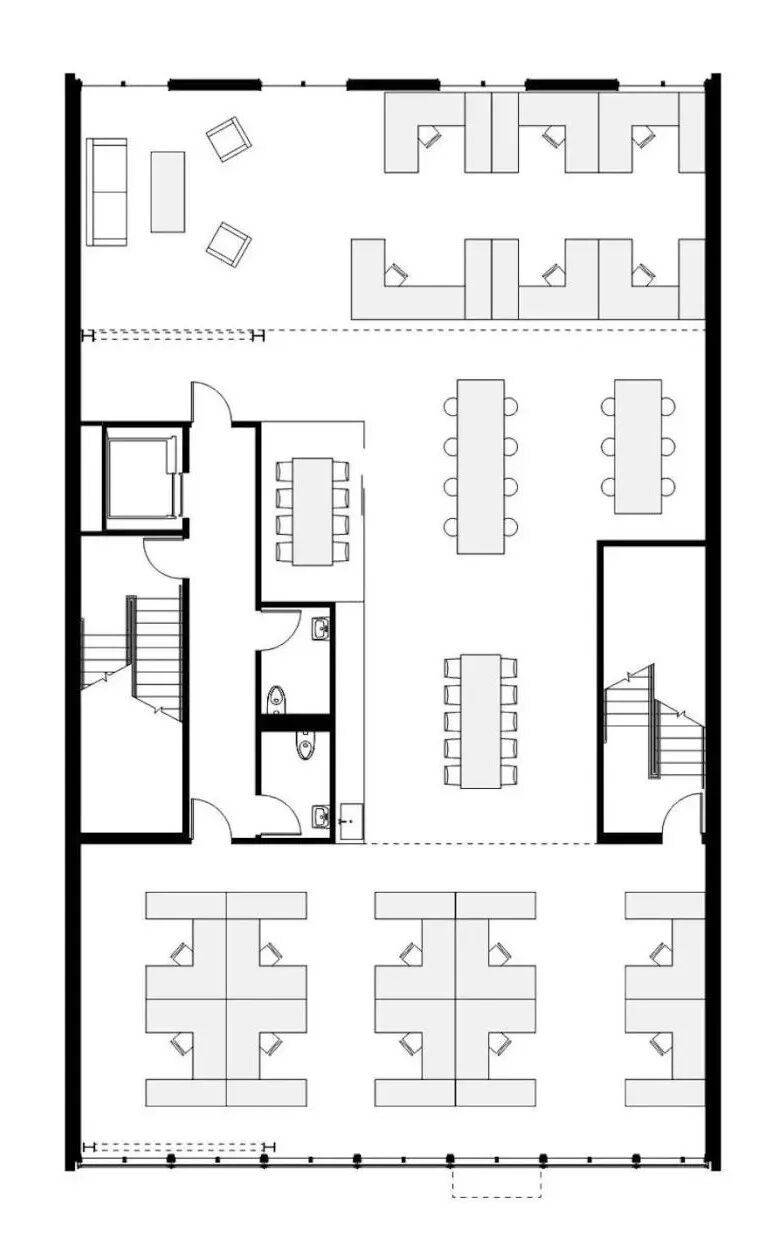
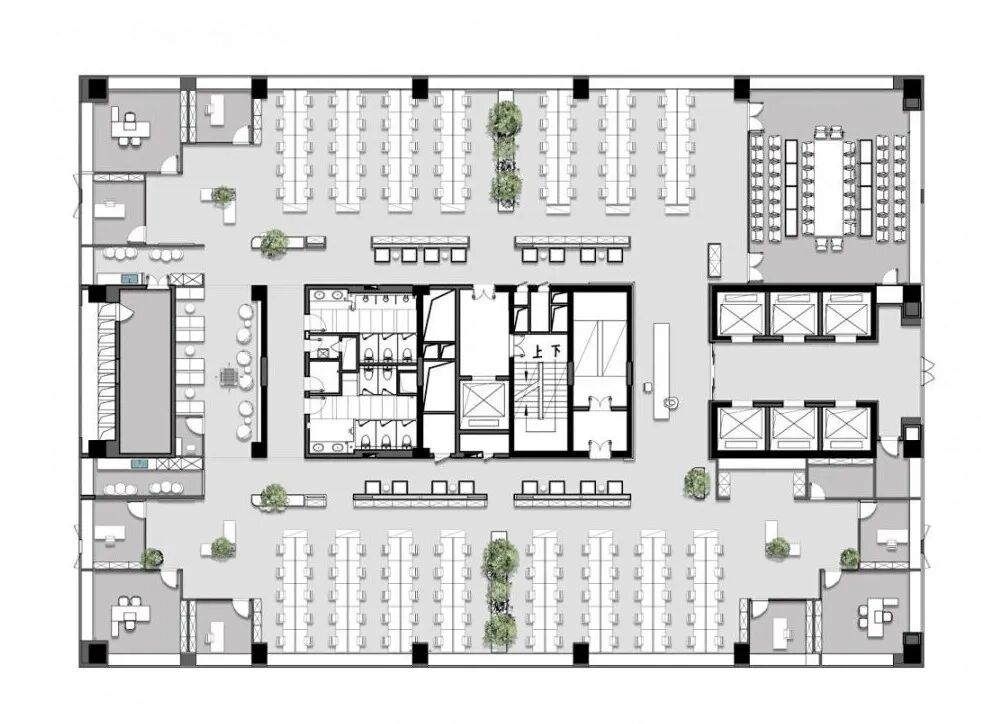
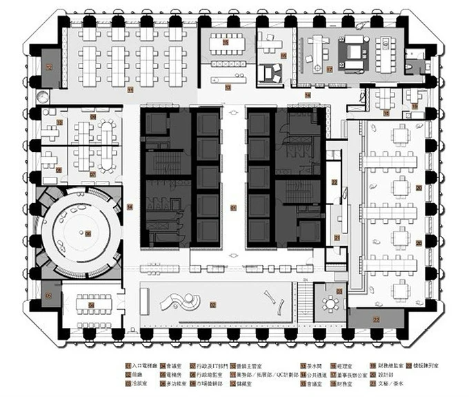
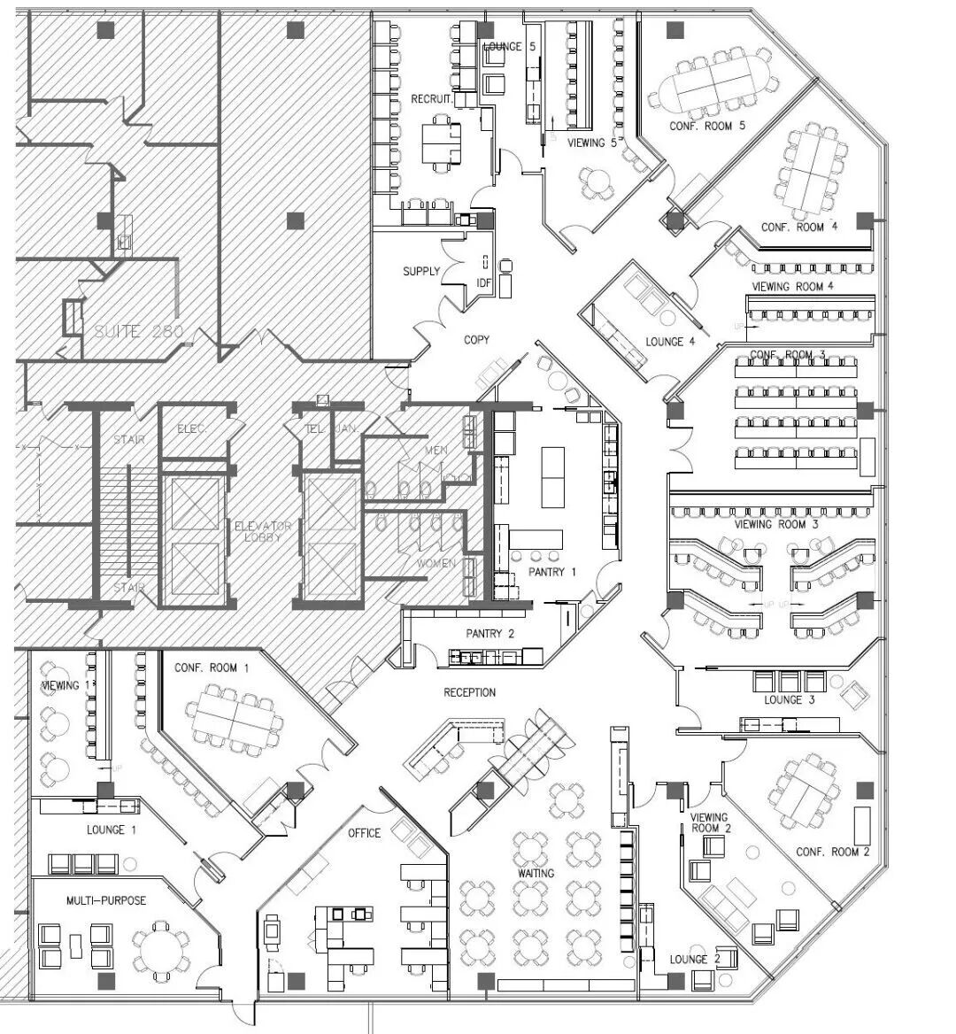
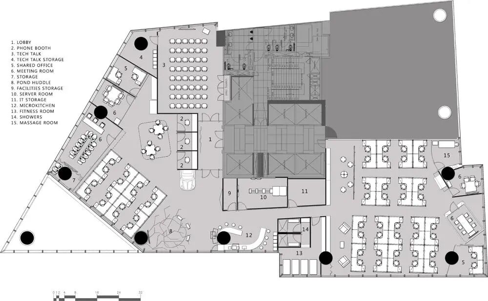
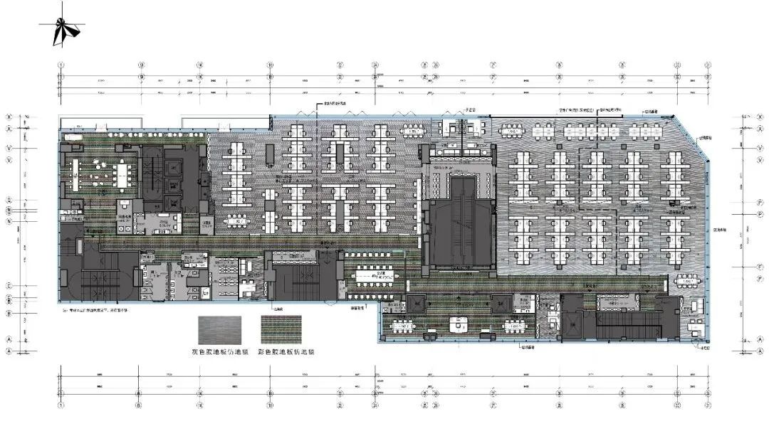
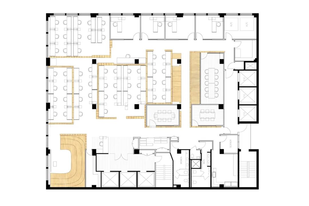
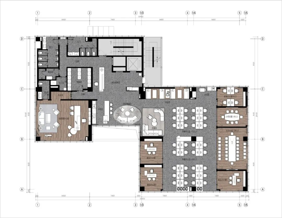
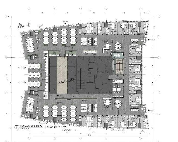
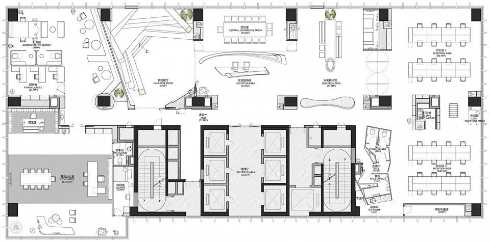
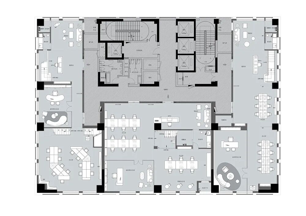
01科学规划办公空间

弹性灵活,办公高效  

 

保证舒适的前提下,确定必选封闭房间极固定工位的面积及布局,并最高效的布局在空间里,将拓展工位与非必要功能(讨论间及游戏室)设置为可置换关系。非必要功能均采用轻质和拆线结构,如铁丝网和布帘,形成空间区隔感,也为后期改变空间布局创造便利条件。



02提升办公空间利用

需求满足,自由转换    


我们倡导的新办公空间需要空间的个性化和灵活性,开敞和流通,倡导绿色办公,给员工提供短暂的自我空间交流,好的公司无不注重以人为本的基本理念,在强调尊重人性、尊重创造的前提下,千方百计改善和创造更好的工作与生活环境,以期促进生产效率的提高并体现是出公司的个性文化内涵,从而造就出更为高效和谐、愉悦的工作环境。


03空间优化动线布局

内外分开,减少交叉  


想要打造一个和谐舒适的办公环境,合理规划布局是第一步。安特威建筑科技设计团队清晰规划了每个空间,从前台接待区、会议室、休闲区、开放办公区、独立办公室、过道到卫生间,不放过每一处细节,大大提升空间利用率,使室内空间显得有条不紊,提升工作体验感。


图片

图片

图片

图片

图片

图片

图片

图片

图片

图片

图片

图片


图片

图片

图片

图片

图片

图片

图片

图片

图片

图片

图片

图片

图片

图片

图片

图片

图片

图片

图片


图片

图片

图片

图片

图片

东莞市嵘铖建设工程有限公司专业从事商务办公、教育培训、餐饮会所、娱乐健身、医院等项目设计施工,为客户提供设计、施工、家具、弱电一站式服务。施工管理团队平均从业年限10年以上,所有项目工地,均由公司直管经营,采取标准化的施工管理,严把质量关卡,按时按质按量完工且检验,高品质交付给每一位客户,客户满意,我们的追求,我们也随时欢迎参观考察。

东莞市嵘铖建设工程有限公司

                                             东莞市工装装修设计                                               

                                                  图文源自网络




登录
登录
其他账号登录:
我的资料
留言
回到顶部