东莞市工装装修设计 | 东莞市办公室装修设计“暖白”与“松弛”共同构建高端商务空间

发表时间:2025-10-28 11:01

图片

在当代高端社交场域中,如何让商务接待既保有对话的私密性,又跳脱传统会所的厚重感?


本次项目,我们通过“暖白哲学”构建出兼具开放性与隐逸感的新型社交空间,以当代设计语言重新定义商务会所的静谧美学。

01

暖白营造呼吸感空间

我们摒弃传统暗调空间的压迫感,空间整体选用米白、象牙白等暖白色调

图片
图片
图片

同时借助艺术漆自带的柔光效果,既保持空间明亮度,又通过光影层次消解空旷感。

02

让爱好成为空间主角

图片
图片
图片

我们保留了客户养鱼的爱好,专门放置了鱼缸作为展示。

同时,鱼缸的内部灯光也能作为点缀,让空间既充满活力,又保留禅意。

03

开放与私密的动态平衡

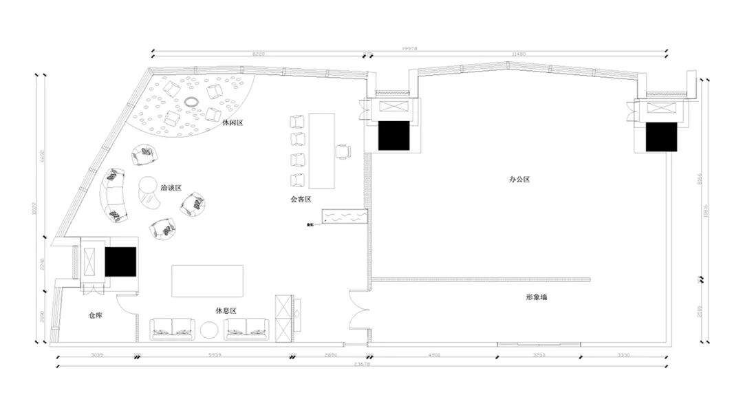
会所作为客户接待的核心场所,需同时满足多人交流与小范围深度对话的需求。

图片
图片
图片

我们将会客区、茶歇区串联为环状动线,客户在自然流动中感知空间层次,同时减少直线通道带来的疏离感。

04

自然肌理奠定温暖基调

我们以“去商业化”为目标,材质组合注重触感与视觉的双重亲和力。

图片
图片

● 墙面采用哑光艺术漆和暖白饰面,营造柔和哑光背景,弱化人工痕迹,突出空间纯净感。


● 通过原木天然纹理打破单调,并采用透明亚克力等材料,更能增添空间的通透感。


● 地面选用亚麻质感地毯,降低脚步声干扰,同时传递可持续设计理念。

图片
图片

改造前


Before Remodeling


图片
图片
图片
图片
图片
图片
图片
图片

改造中


Before Remodeling


图片
图片
图片
图片
图片
图片
图片
图片
图片
图片
图片

优秀的会所设计,本质是创造一种“舒适的专业感”——让客户在放松的状态下感知品牌实力。


本项目通过暖白色基调、自然材质与艺术化细节,构建了一个开放而不失私密、专业而不失温度的高端社交场域。


如需定制专属商务空间解决方案,欢迎留言咨询,我们将为您提供从设计到落地的全周期服务。

东莞市嵘铖建设工程有限公司专业从事商务办公、教育培训、餐饮会所、娱乐健身、医院等项目设计施工,为客户提供设计、施工、家具、弱电一站式服务。施工管理团队平均从业年限10年以上,所有项目工地,均由公司直管经营,采取标准化的施工管理,严把质量关卡,按时按质按量完工且检验,高品质交付给每一位客户,客户满意,我们的追求,我们也随时欢迎参观考察。

东莞市嵘铖建设工程有限公司

                                             东莞市工装装修设计                                               

                                                  图文源自网络


登录
登录
其他账号登录:
我的资料
留言
回到顶部