东莞市工装装修设计 | 东莞市办公室装修设计蓝调空间+原木温度,用设计重塑办公空间生命力

发表时间:2025-10-28 11:12


图片
图片

Skytech位于维尔纽斯的办公室是为那些为今天和明天而活的人而设。新颖的室内设计反映了对业务的态度,即希望永远向明天迈出一小步。

Skytech office in Vilnius is to those who live for today and tomorrow. The innovative interior reflects the company's approach to business that is the desire always to take one small step into tomorrow.

图片
图片
图片
图片

室内设计的主要目的是为所谓的“生活办公室”创造功能性和非同寻常的空间。

The main purpose of the interior design was to create functional and unusual spaces of the so called living office.

图片
图片
图片

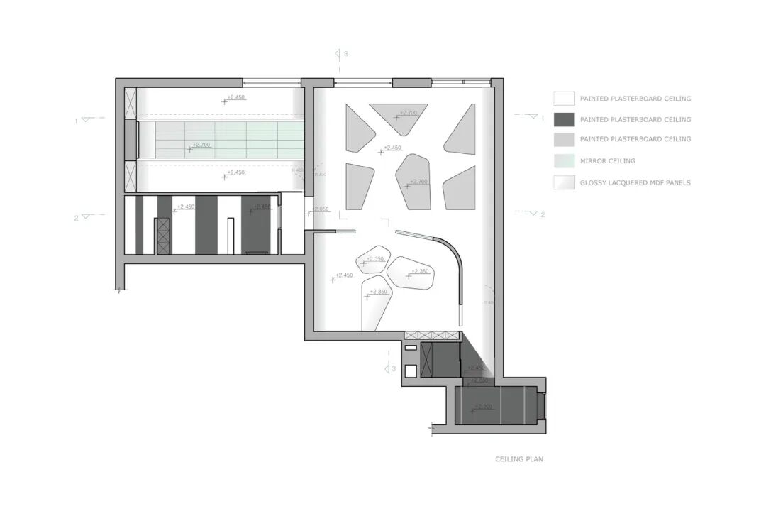
占地近95平方米的空间由走廊、休息区、六个工作区、会议室(配有壁床)和浴室组成。

The area of almost 95 square meters consists of the corridor, rest area, six work spaces, meeting room (with wall beds) and bathroom.

图片
图片
图片

该区域由玻璃和石膏隔墙划分,既有可以交流的公共区域,也有可以保护隐私的私人区域。

The area is divided by glass and plaster partitions creating common areas that allow communicating as well as private areas that allows having privacy.

图片
图片

室内装饰的色调和光滑的形状受到了公司个人风格的影响。

The colour palette of the interior and smooth shapes were influenced by an individual style of the company.

图片
图片

白色为主色调,使整个空间具有精确的美感;黑色突出了办公室的各个区域,并强调了形状;而绿色的细节则点亮了无彩色的室内设计。

The dominating white colour gives the space aesthetic precision, black colour accentuates areas in the office and emphasizes shapes, whereas green colour details brighten up the interior design of the achromatic colour scheme.

图片
图片
图片

几何形状的隔板、家具和配饰营造出未来感十足的室内设计。

Geometric shapes of partitions, furniture, and accessories create futuristic interior design.

图片
图片
图片
图片
图片

东莞市嵘铖建设工程有限公司专业从事商务办公、教育培训、餐饮会所、娱乐健身、医院等项目设计施工,为客户提供设计、施工、家具、弱电一站式服务。施工管理团队平均从业年限10年以上,所有项目工地,均由公司直管经营,采取标准化的施工管理,严把质量关卡,按时按质按量完工且检验,高品质交付给每一位客户,客户满意,我们的追求,我们也随时欢迎参观考察。

东莞市嵘铖建设工程有限公司

                                             东莞市工装装修设计                                               

                                                  图文源自网络



登录
登录
其他账号登录:
我的资料
留言
回到顶部