东莞市工装装修设计 | 东莞市办公室装修设计设计师必须掌握的工装平面方案设计!

发表时间:2025-10-29 11:01
图片


平面方案对空间的重要性不用我说大家都知道吧,不论是家装还是工装,平面方案的布置都是最基础也是最重要的一步。


图片


工装的规模普遍要比家装大,类型也是多种多样,在平面方案的布置上也就更复杂,今天我们就来说说三个工装空间的平面布置。


图片
图片

文末附 工装空间平面布置方案合集



01

办公空间


图片


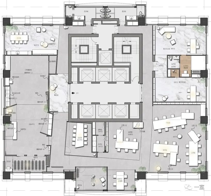
办公空间在平面上需要进行合理的功能区划分,不同的企业会有不同功能空间的需求。一般办公空间有前台接待、工作、会议以及独立办公室等基础功能区域,灵活多元的区域及其他辅助功能区根据性质,设置在合适的位置。


图片
图片


除了一些因建筑形状或是有特殊需求的办公空间,在办公空间的家具布置上,大多是按水平垂直方式布置的,要保证其设计安排符合人体工程学。


图片
图片



02

售楼处


图片


现在的售楼处可不同于以往了,不再一味追求金碧辉煌,而是更注重体验感。一般都有接待区、展示区、洽谈区、办公区等基本功能区,更加大型或高端的还会加上儿童活动区、休闲区、会所等辅助功能区。


图片
图片


整体空间布局合理,流线顺畅是非常必要的,将客户相关活动区域适当集中,让客户从进入到参观再到洽谈整个流程都是顺畅的。


图片
图片



03

酒店


图片


酒店一般规模较大,平面布局复杂且尤为重要。首先是功能区的划分以及功能区之间的联系,一般来说酒店有基本功能与延伸功能,基本功能比如大堂、接待、客房等,延伸功能比如餐厅、会议室等。


图片
图片


而与功能布局息息相关的就是流线了,酒店的流线主要是客人流线和服务流线,合理的功能流线设计是酒店成功运营的基础。客人流线主要涉及住宿、餐饮、休闲娱乐等,要清晰明了;服务流线主要涉及行政办公、后勤等,要保证服务工作高效快捷。


图片

          ▲ 酒店整体功能分区及流线示意图

图片
图片


像酒店这类较大型的工装,在平面方案上需要考虑的也更多。这里小编为你准备了工装空间平面布置方案合集,包含9大工装空间的平面布置方案,带你了解不同空间的平面表达形式及功能空间划分,让你不再为不同工装空间的平面布置而发愁。

图片


平面方案对空间的重要性不用我说大家都知道吧,不论是家装还是工装,平面方案的布置都是最基础也是最重要的一步。


图片


工装的规模普遍要比家装大,类型也是多种多样,在平面方案的布置上也就更复杂,今天我们就来说说三个工装空间的平面布置。


图片
图片

文末附 工装空间平面布置方案合集



01

办公空间


图片


办公空间在平面上需要进行合理的功能区划分,不同的企业会有不同功能空间的需求。一般办公空间有前台接待、工作、会议以及独立办公室等基础功能区域,灵活多元的区域及其他辅助功能区根据性质,设置在合适的位置。


图片
图片


除了一些因建筑形状或是有特殊需求的办公空间,在办公空间的家具布置上,大多是按水平垂直方式布置的,要保证其设计安排符合人体工程学。


图片
图片



02

售楼处


图片


现在的售楼处可不同于以往了,不再一味追求金碧辉煌,而是更注重体验感。一般都有接待区、展示区、洽谈区、办公区等基本功能区,更加大型或高端的还会加上儿童活动区、休闲区、会所等辅助功能区。


图片
图片


整体空间布局合理,流线顺畅是非常必要的,将客户相关活动区域适当集中,让客户从进入到参观再到洽谈整个流程都是顺畅的。


图片
图片



03

酒店


图片


酒店一般规模较大,平面布局复杂且尤为重要。首先是功能区的划分以及功能区之间的联系,一般来说酒店有基本功能与延伸功能,基本功能比如大堂、接待、客房等,延伸功能比如餐厅、会议室等。


图片
图片


而与功能布局息息相关的就是流线了,酒店的流线主要是客人流线和服务流线,合理的功能流线设计是酒店成功运营的基础。客人流线主要涉及住宿、餐饮、休闲娱乐等,要清晰明了;服务流线主要涉及行政办公、后勤等,要保证服务工作高效快捷。


图片

          ▲ 酒店整体功能分区及流线示意图

图片
图片

东莞市嵘铖建设工程有限公司专业从事商务办公、教育培训、餐饮会所、娱乐健身、医院等项目设计施工,为客户提供设计、施工、家具、弱电一站式服务。施工管理团队平均从业年限10年以上,所有项目工地,均由公司直管经营,采取标准化的施工管理,严把质量关卡,按时按质按量完工且检验,高品质交付给每一位客户,客户满意,我们的追求,我们也随时欢迎参观考察。

东莞市嵘铖建设工程有限公司

                                             东莞市工装装修设计                                               

                                                  图文源自网络



登录
登录
其他账号登录:
我的资料
留言
回到顶部