东莞市工装装修设计 | 养疗愈空间设计

发表时间:2025-10-30 16:08

东莞市嵘铖建设工程有限公司专业从事商务办公、教育培训、餐饮会所、娱乐健身、医院等项目设计施工,为客户提供设计、施工、家具、弱电一站式服务。施工管理团队平均从业年限10年以上,所有项目工地,均由公司直管经营,采取标准化的施工管理,严把质量关卡,按时按质按量完工且检验,高品质交付给每一位客户,客户满意,我们的追求,我们也随时欢迎参观考察。


图片

设计说明

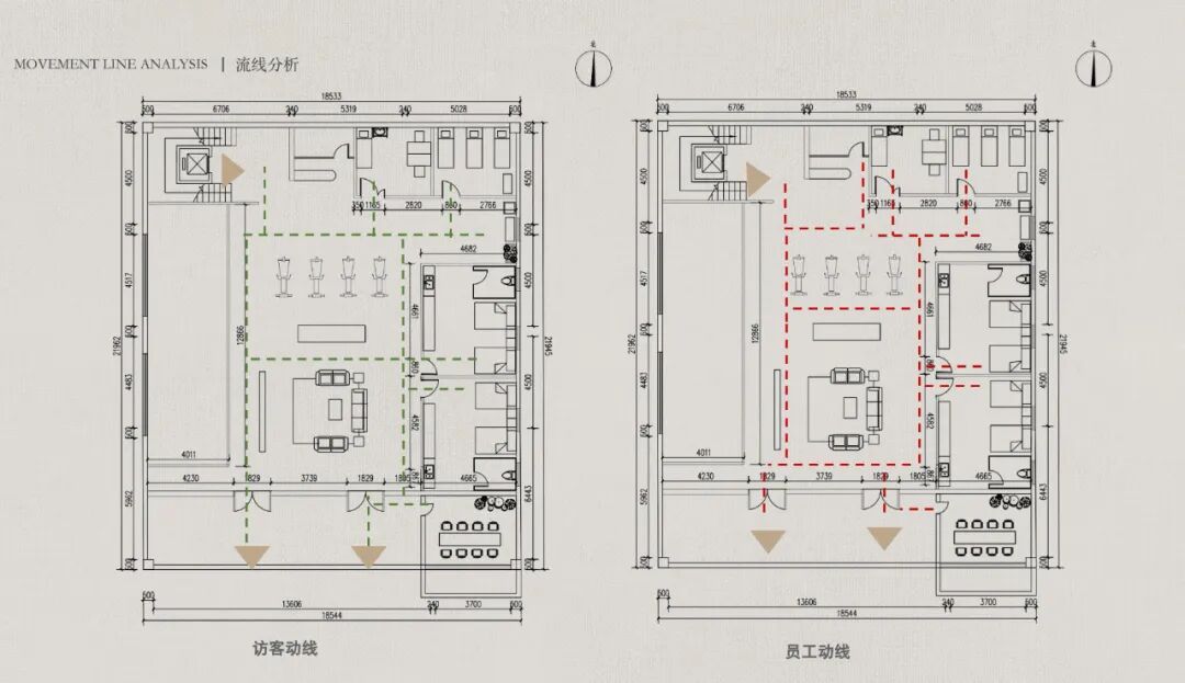
本次设计是以“人文艺术、回归自然、康养疗愈、适老关怀”为核心的综合性养老空间,旨在为乡村长者打造一个身心皆可安放的理想居所。设计采用“组团式布局”,巧妙融合公共花园与室内养老功能,形成 “花园—建筑—人”三位一体的疗愈型养老社区。针对乡村老龄化现状,为不同性格长者提供专属“心灵港湾”,营造有尊严、有温度的晚年生活环境。




图片



— 项目视频 —


图册展示

图片
图片
图片
图片
图片
图片
图片
图片
图片
图片
图片
图片
图片
图片
图片
图片
图片
图片
图片
图片
图片
图片
图片
图片
图片
图片
图片
图片
图片
图片
图片
图片
图片
图片
图片
图片
图片
图片
图片
图片
图片
图片
图片
图片
图片
图片
图片
图片
图片
图片
图片
图片
图片
图片
图片
图片
图片
图片
图片
图片
图片
图片
图片
图片
图片
图片
图片
图片
图片
图片
图片



图片
图片
图片

东莞市嵘铖建设工程有限公司专业从事商务办公、教育培训、餐饮会所、娱乐健身、医院等项目设计施工,为客户提供设计、施工、家具、弱电一站式服务。施工管理团队平均从业年限10年以上,所有项目工地,均由公司直管经营,采取标准化的施工管理,严把质量关卡,按时按质按量完工且检验,高品质交付给每一位客户,客户满意,我们的追求,我们也随时欢迎参观考察。

东莞市嵘铖建设工程有限公司

                                             东莞市工装装修设计                                               

                                                  图文源自网络


登录
登录
其他账号登录:
我的资料
留言
回到顶部